深圳市東么川伺服控制技術有限公司
電話:13316379101
郵箱:1355229533@qq.com
地址:深圳市龍華區民治街道樟坑社區青創城A棟B502
絲桿步進電機選型計算方法與驅動器控制器選型
發布時間:2020-11-24 09:48:09
直線步進電機,又稱絲桿步進電機和線性步進電機,是將旋轉運動轉化為線性運動的一種特殊步進電機。直線步進電機的首次推出是1968年,下圖是一些典型的直線步進電機。

在直線電機產品選型時,我們建議工程師們要重點考慮以下幾點:

一、系統的負載是多少?
系統的負載的大小往往決定了絲桿步進電機的基本尺寸。
負載:絲桿處于運動狀態下可承受的最大推力。
直線步進電機推力選型計算方法

F代表推力 (單位:N)
η代表效率 (n取值范圍0.7~0.75,建議取值為0.7)
t代表導程(單位:M)T代表扭矩 (單位:N*M)
水平推力計算方法F=μmg+ma
(μ取值范圍為0.02~0.03 建議取值為0.03 g取值為10m/s^2 μmg代表摩擦力 ma代表加速力 )
水平推力需要克服摩擦力與加速力

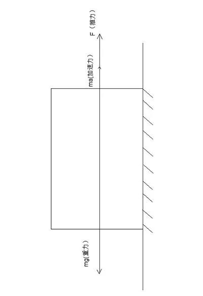
垂直推力計算方法F=ma+mg(g取值為10m/s^2 ma向上代表加速力 mg為重力)
垂直推力需要克服自身重力與加速力

通過計算得出的扭矩為負載實際需要電機扭矩,T負載。我們建議可放大2倍的安全系數選擇電機扭矩,即:電機的保持扭矩取負載扭矩的2倍。如下:
T電機=T負載*2
二、電機的直線運行速度是多少?
直線電機的運行速度與絲桿的導程緊密相關,絲桿旋轉一圈則螺母前進一個導程,低速度宜選擇導程較小的絲桿,高速度宜選擇較大的絲桿。
注意:導程的大小 還決定著推力的大小,所以還需要注意以下兩點
1:大導程: 推力小,速度快;
2:小導程:推力大,速度慢。
根據你實際需要的推力和速度來選擇
三、.系統的精度要求是多少?
絲桿精度:即絲桿旋轉若干圈后實際行程與理論行程的誤差。Umot絲桿電機的最大誤差不超過0.05mm。
有效行程:即絲桿上的螺母直線方向上運行的最大距離
五、步進驅動器選擇:
1、步進驅動器目前主流的以恒流驅動器為主,驅動器的電流可以根據電機的電流進行設置,只要電機的相電流在驅動器提供范圍內即可。
2、驅動的供電電壓目前大部分在20-48VDC范圍內,同時支持細分。
3、考慮驅動器的接受脈沖形式:脈沖+方向;CW+CCW,5V信號或者24V信號
六、控制器選擇:
控制器可根據整個系統需要實現的運動方式來選擇,其次是根據自己的編程能力來選擇,為大家推薦兩種類型
簡易型:
可選擇單軸器,易操作,價格低,可實現簡單的運動方式
多功能型:
可選擇多軸控制器和數控系統,易操作,價格高,可實現多種運動方式
其次是單片機和PLC,需要編程,對技術人員開發能力有一定要求,性價比高,可以實現多種運動方式和復雜控制。
產品推薦:兩相步進電機
產品推薦:無刷電機
產品推薦:兩相步進驅動器
產品推薦:直流無刷驅動器




























地址 ADDRESS